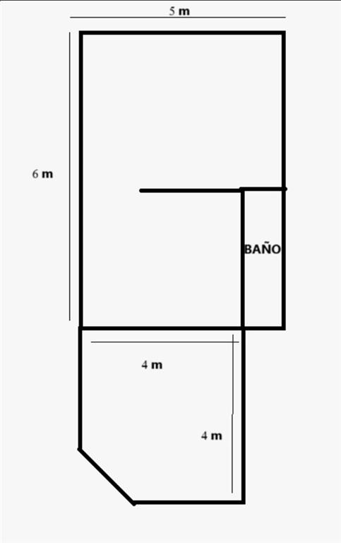
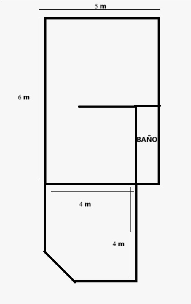
PLENO CENTRO DE NUESTRA CIUDAD, ESQUINA INMEJORABLE. IDEAL PARA OFICINAS O NEGOCIOS (VIRIOS) OFRECEMOS ESTA ESQUINA DE 50M2 (NECOCHEA Y JUAN B JUSTO) DISTRIBUIDA DE LA SIGUIENTE MANERA: RECEPCION, SALON DIVIDIDO (CON OPCION A MODIFICACIONES) Y BAÑO.

Oferta provista por el sistema SOM a Top Inmobiliario - Código ECP 2420
wifi_1_barProducto: Oficinas
wifi_1_barSubproducto: Planta Dividida
wifi_1_barUbicación: NECOCHEA Nro:100 - Resistencia, Prov. Chaco - Argentina
wifi_1_barActualizado a: 24/02/2026
wifi_1_barOperación: Alquiler
wifi_1_barEstado: Vigente

$ 1650000.00


Características:

check_smallUbicación en planta: Frente
check_smallEstado: Excelente
check_smallLuminosidad: Muy luminoso
check_smallSuperficie cubierta: 50 m2
check_smallSuperficie total: 50 m2
check_smallCategoría del edificio: Excelente

Planos:


Consulta esta propiedad al 3624 530606