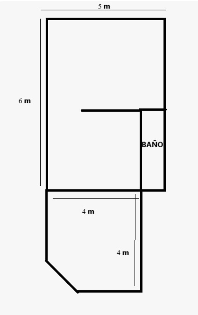
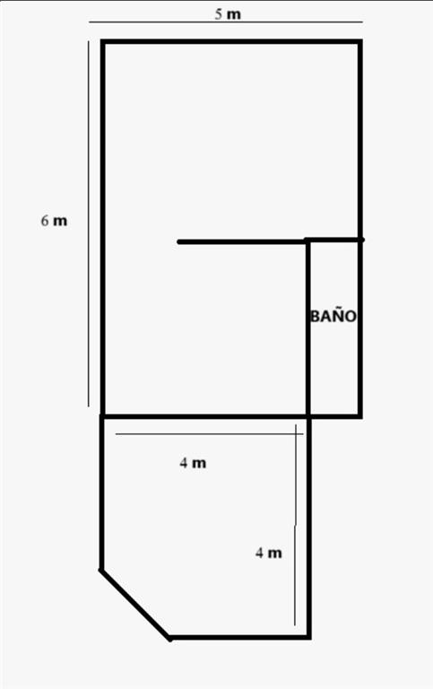
PLENO CENTRO DE NUESTRA CIUDAD, ESQUINA INMEJORABLE. IDEAL PARA OFICINAS O NEGOCIOS (VIRIOS) OFRECEMOS ESTA ESQUINA DE 50M2 (NECOCHEA Y JUAN B JUSTO) DISTRIBUIDA DE LA SIGUIENTE MANERA: RECEPCION, SALON DIVIDIDO (CON OPCION A MODIFICACIONES) Y BAÑO.

Oferta provista por el sistema SOM a Top Inmobiliario - Código ECP 2419
wifi_1_barProducto: Locales
wifi_1_barSubproducto: En Esquina
wifi_1_barUbicación: NECOCHEA Nro:100 - Resistencia, Prov. Chaco - Argentina
wifi_1_barActualizado a: 27/03/2026
wifi_1_barOperación: Alquiler
wifi_1_barEstado: Vigente

$ 1650000.00


Características:

check_smallEstado: Excelente
check_smallSuperficie cubierta PB: 50 m2
check_smallSuperficie total: 50 m2

Planos:


Consulta esta propiedad al 3624 530606